電機不參振給料機的給料過程是利用特制的振動電機或兩臺電動機帶動激振器驅動給料槽沿傾斜方向作周期直線往復振動來實現,當給料槽振動的加速度垂直分量大于重力加速度時,槽中的料被拋起,并按照拋物線的軌跡向前跳躍運動,拋起和下落在瞬間完成,由于激振源的連續激振,給料槽連續振動,槽中的煤連續向前跳躍,以達到給料的目的。適用于礦山、冶金、化工,建材等行業各種散狀物料的輸送,也適用于水份高,含量大的粘性物料。
電機不參振給料機特點:
一、給料機電機為撓性聯接,電機不參振,運行可靠,維修方便,運行周期長而不壞;
二、給料機安裝形式有四種支撐方式和懸吊方式倆種;
三、電機不參振給料機的具體參數可根據物料特性由設計單位確定;
四、給料機振幅、槽體傾角以及頻率(加變頻調速器)都是可以進行調節的,易于配套和參與自動控制。料槽可配置各種襯板;
五、電機不參振給料機與其他類型給料機相比還具有給料量大、耗能低等優點。

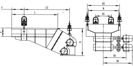
技術參數:
| 型號 | 槽體尺寸 寬×長×高(mm) |
給料能力t/h | 電機型號 | 功率(千瓦) | 振動頻率(Hz) | 振幅(雙)(mm) | 重量 (公斤) |
|
| α=0° | α=10° | |||||||
| BZG1015 | 1000×1500×200 | 200 | 450 | Y112M-6 | 2×1.5 | 16 | 12 | 998 |
| BZG1020 | 1000×2000×200 | 200 | 450 | 2×2.2 | 1053 | |||
| BZG1216 | 1200×1600×280 | 200 | 600 | 1050 | ||||
| BZG1220 | 1200×2000×280 | 200 | 600 | 1123 | ||||
| BZG1525 | 1500×2500×330 | 500 | 1200 | Y132S-6 | 2×3 | 1850 | ||
| BZG1530 | 1500×3000×330 | 500 | 1200 | 1992 | ||||
| BZG1825 | 1800×2500×330 | 800 | 1500 | Y132M1-6 | 2×4 | 2180 | ||
| BZG1830 | 1800×3000×330 | 800 | 1500 | 2327 | ||||
| 型號 | A | H | L | D | B | B3 | B4 | B1 | L2 | B2 |
| BZG1015 | 400 | 288 | 1500 | 900 | 1000 | 649 | 949 | 600 | 1550 | 1200 |
| BZG1020 | 500 | 288 | 2000 | 900 | 1000 | 649 | 949 | 600 | 1950 | 1200 |
| BZG1216 | 400 | 288 | 1600 | 1000 | 1200 | 749 | 949 | 600 | 1650 | 1400 |
| BZG1220 | 500 | 288 | 2000 | 1000 | 1200 | 749 | 949 | 600 | 1950 | 1400 |
| BZG1525 | 800 | 330 | 2500 | 1170 | 1500 | 900 | 1146 | 907 | 2210 | 1735 |
| BZG1530 | 800 | 330 | 3000 | 1170 | 1500 | 900 | 1146 | 907 | 2710 | 1735 |
| BZG1825 | 800 | 330 | 2500 | 1170 | 1800 | 1079 | 1336 | 1207 | 2210 | 2035 |
| BZG1830 | 800 | 330 | 3000 | 1170 | 1800 | 1079 | 1336 | 1207 | 2710 | 2035 |
蘇公網安備 32062102000309號